1 Box/Posti auto 50 m2
Caratteristiche principali
Altre caratteristiche e accessori
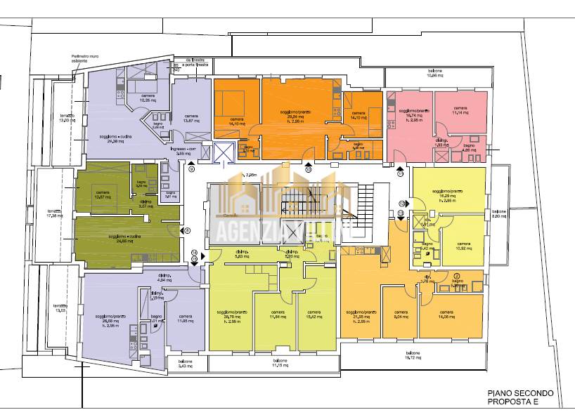
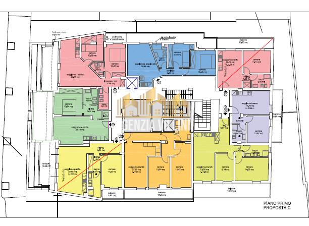
a 200 m. dal mare appartamenti in fase di ristrutturazione, primo e secondo piano di un ex albergo, ampie metrature, terrazzi per poter pranzare all'aperto, finiture di elevato standard, classe energetica A+, posto auto incluso a pochi metri dall'abitazione. disponibili bilocali a partire da 225.000,00 e trilocali a partire da 255.000,00 incluso posto auto ed escluso Iva di legge
si allega listino prezzi